Freizeittechnologie Otten

CHAOS pur mit 4 G

Einen flauen Magen gibt es hier öfter, denn das Chaos-Pendel wird einfach unterschätzt. Mit seinen drei Armen und den beiden Gondeln kommt es ganz harmlos daher – doch weit gefehlt: Unberechenbar drehen sich diese Arme, es kommt zu schlagartigen Bewegungen mit einer Beschleunigung bis zur 4-fachen Erdanziehungskraft (4 G).

Dazu drehen sich die Gondeln um die eigene Achse – Chaos pur. Der Name kommt eben nicht von ungefähr.

Eigenschaften

Kapazität: 2x 8 Personen

Max. Drehzahl Pendelarm: 5 Umdrehungen / Minute

Max. Drehzahl Gondelarm: 7 Umdrehungen / Minute

Max. Flughöhe: 45m

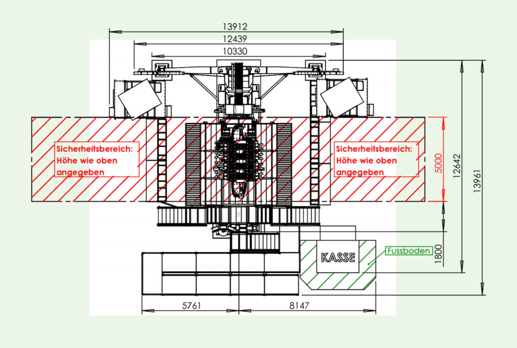
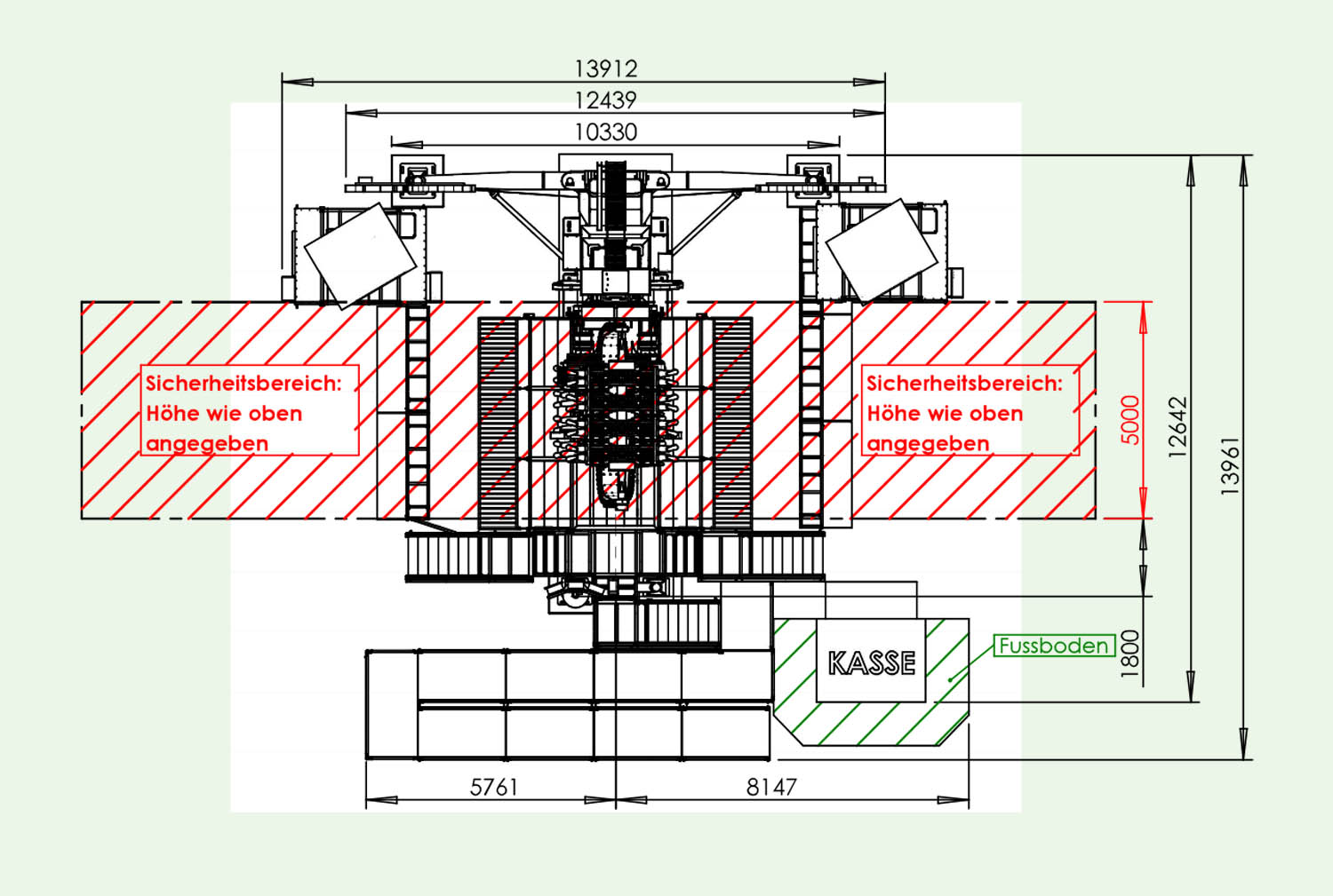
Technische Informationen

Front : 14m

Tiefe: 14m

Je nach Platzbedingungen ist der Anstell- und Kassenbereich variabel anpassbar und auf 10m x 10m reduzierbar.

Die Kassenmaße (3m x 3m) sind in diesen Fall nicht berücksichtigt und müssten in Front oder Tiefe berücksichtigt werden.

Anschlussleistung: 195KW 3-400V, 315A

Norm: EN13814

Abnahme: TÜV Süd

Baujahr 2018

Fuhrpark

1 Wohnwagen 10,00m x 4,00m

1 Mannschaftswagen 12,00m x 3,00m

3 Packwagen 13,60m x 2,50m

Wissenswertes

Freizeittechnologie Otten

Im Detail

Die drei Arme sind einzeln aufgehängt und bewegen sich unabhängig voneinander. Den genauen Verlauf kann man daher nicht vorhersagen – so entstehen immer wieder ganz individuelle Fahrten – jede ist anders. Durch die unabhängigen Bewegungen vom großen Rotor am kleinen Arm kommt es immer wieder zu überraschenden Wendungen. Der kleine Arm beeinflusst den Rotor durch seine eigene, unabhängige Rotation. Bei Gegenrotation bremst er, im umgekehrten Fall sorgt er für eine zusätzliche Beschleunigung – bis zu 4 G. Durch dieses Zusammenspiel ergeben sich unendliche Varianten in einer ellipsenförmigen Fahrt.

Zusätzlich schaukeln und drehen sich die Gondel um die eigene Achse. Da lässt das Adrenalin der Mitfahrer garantiert nach oben schießen. Der Kick ist garantiert!

Zusammen passen in die zwei Gondel 16 Fahrgäste und es geht auf eine Höhe von 47 Metern – mit Tempo 80 am großen Rotor.

Das Chaos-Pendle wurde 2018 von der Firma Funtime gebaut. Es ist mit neuster Lichttechnik ausgestattet – rund 15.000 LED setzen das gesamte Fahrgeschäft in der Abenddämmerung eindrucksvoll in Szene. Genauso faszinierend ist auch die Tonanlage, die für einen fetten Sound sorgt.

Kontakt

Noch Fragen

Kontakt